FONTVIELLE - GRAND LARGE - SPACIOUS OFFICES ON GROUND FLOOR

25 000 €
290 sqm
+5 rooms
Ref. : L1625
Ref. : L1625
FONTVIELLE - GRAND LARGE - SPACIOUS OFFICES ON GROUND FLOOR

In a luxury building on the port of Fontvieille, large premise currently used as an office, facing the sea.
Possibility of a commercial or long-term lease

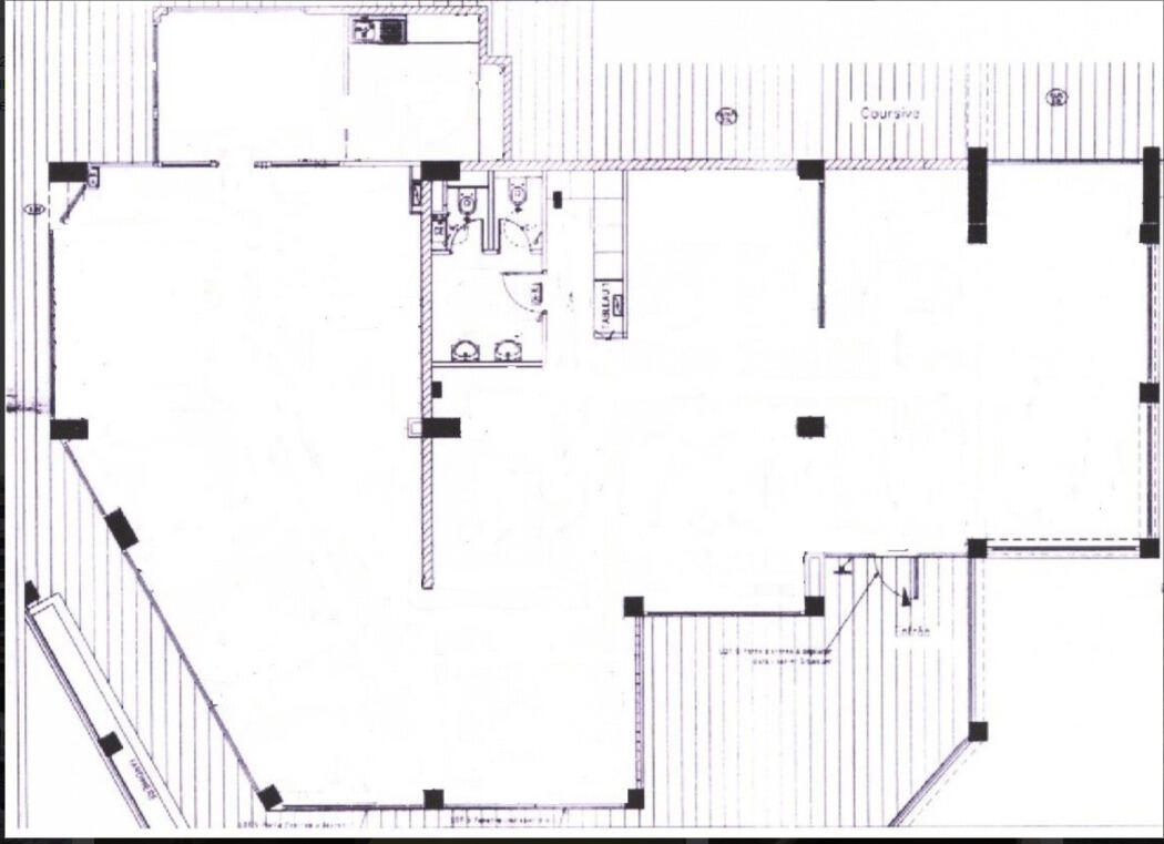
Large space partially fitted out and equipped in perfect condition, located in the luxury building Le Grand Large on the marina of Fontvieille. The building benefits from a 24/7 concierge, close to all amenities;  

The office, partly in open space, benefits from large windows with sea view and a very beautiful light.

It consists of: an open space, a large meeting room, various offices, archive and computer room, men's and women's toilets, equipped kitchen, common area. 

The office is fully air-conditioned.

2 parking spaces complete the property.

Lire moins

Property information

Ref.
L1625
Price
25 000 €
Transaction type
Professional rental
Service charges
1 900 €
Product type
Office
Building
Le Grand Large
District
Fontvieille
City
Monaco
Floor
Ground floor
Total surface area
290 sqm
Living area
290 sqm
Parkings
2

The property and its surroundings

Barnes I Valeri Agency

Barnes I Valeri Agency

7 Avenue des Papalins
« Immeuble Michelangelo »
98000 Monaco
+377 92 16 16 32

Contact-us

Other properties in the area